Un paisaje rodeado de jardines y sinuosos paseos entre esculturas, una parcela elevada con una visión lejana del puerto y una agradable brisa, constituyen el buscado y afortunado punto de partida para esta historia.
La propuesta surge como una respuesta directa hacia el sol, el ocaso y el mar. Una “fortaleza” emerge sobre la colina y domina el pequeño pueblo pesquero de Candás. De líneas rectas y serenas, se encuentra el punto de equilibrio entre la funcionalidad del programa y las visuales creadas gracias a los juegos de volúmenes y a los quiebros de la fachada en alzados y sección. La vivienda se adapta al terreno creando espacios y privacidad frente a las parcelas colindantes, buscando la dualidad de tener una espacialidad muy abierta y simultáneamente una percepción acotada del espacio.
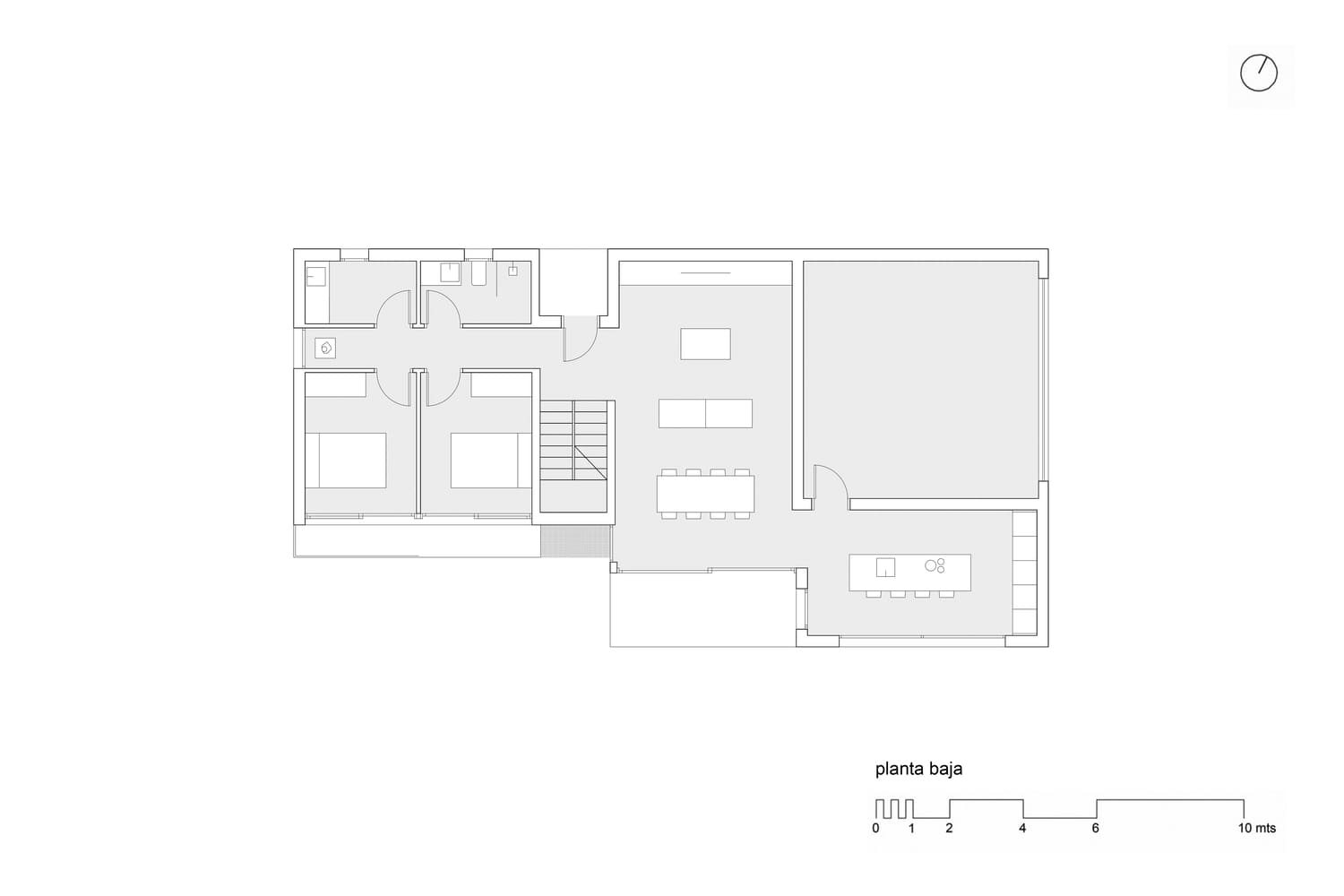
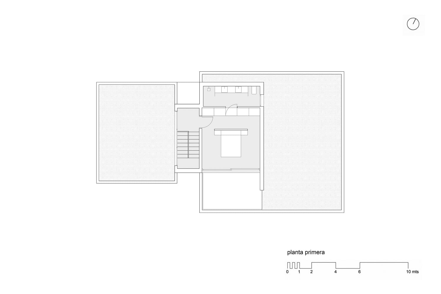
El espacio interior de la vivienda se articula mediante una caja de escaleras que se dispone perpendicularmente a las estancias e irrumpe compositivamente como una pieza que se encaja y contrasta con la ligereza del conjunto. El programa se resuelve con una delimitación clara de las zonas privativas y comunes, siendo determinante la posición de la escalera, la situación de los espacios sirvientes y servidos y las plantas en la que se definen cada una de las estancias.











