El proyecto surge como una respuesta lineal a la luz de mediodía, diferenciando a su vez cada estancia con un estudiado juego de volúmenes y de espacios de intimidad.
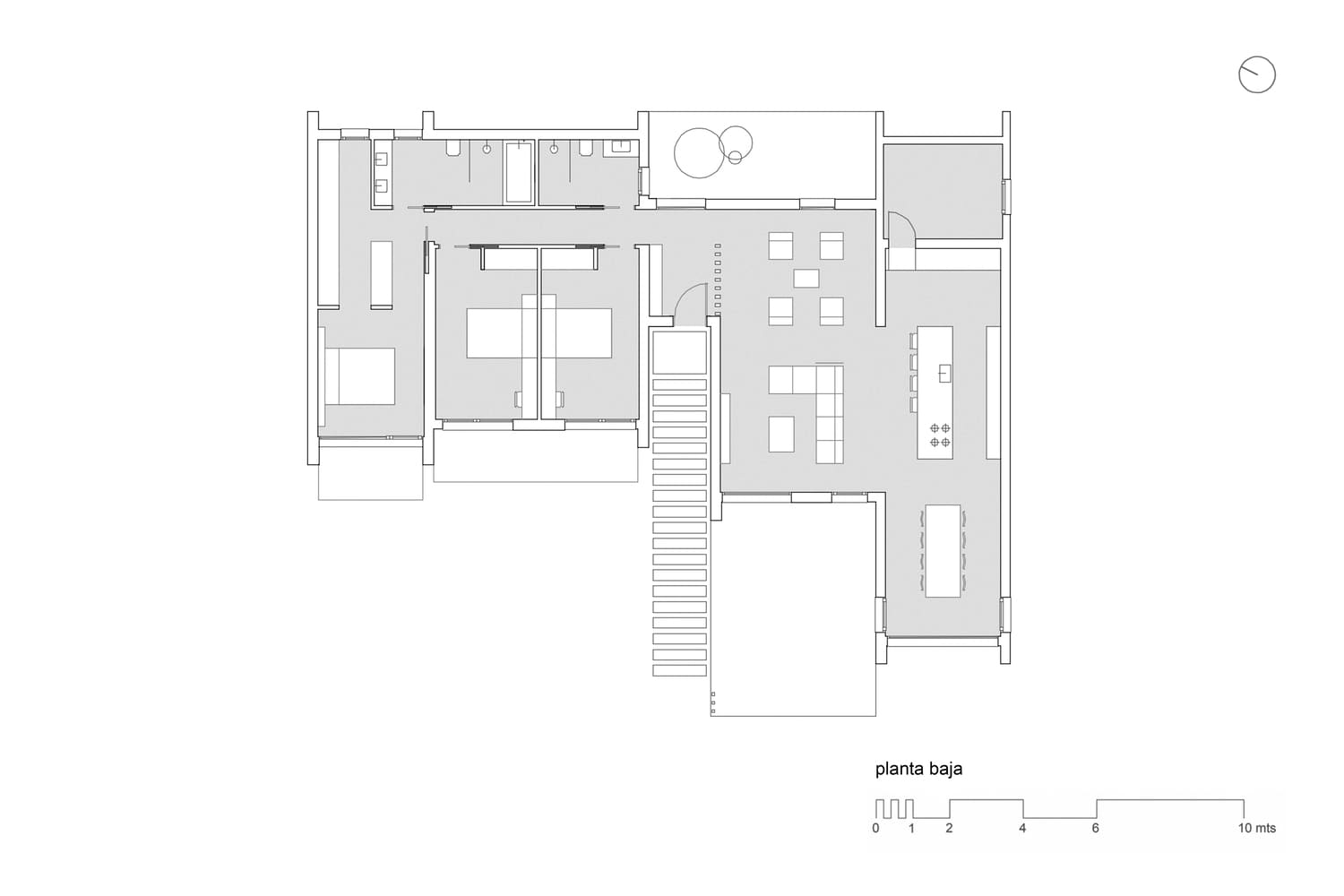
La planta de la vivienda responde a un programa funcional claro: zona de noche al oeste y zona de día al este, ambas divididas por el vestíbulo, que se marca compositivamente como una pieza revestida de madera y que articula el conjunto. Entrando en mayor detalle y estableciendo la jerarquía espacial del maestro Louis I. Kahn, los espacios servidos se plantean a sur y los servidores a norte.
Estéticamente se intenta disimular el requerimiento urbanístico de realizar la vivienda con una cubierta inclinada de teja cerámica curva. Esto se consigue gracias a una estructura de muros de carga que deja poca distancia entre crujías, permitiendo que la cubierta, oculta por los petos de la misma, no sea visible desde el exterior. De esta manera la arquitectura es consecuente con el lenguaje de su época, además de ser más acorde con el entorno donde se implanta.





