El proyecto se desarrolla en una parcela con escarpada pendiente y rodeada de algunas de las construcciones decimonónicas y contemporáneas más representativas de la ciudad.
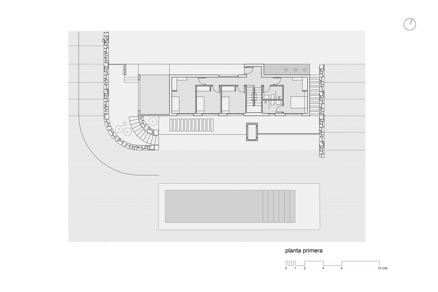
El edificio surge como una respuesta directa, como un paralelepípedo en el que la zona de día se sitúa en la planta inferior y la zona de noche en la superior. Compositivamente, voladizos emergen formando marquesinas, zaguanes, terrazas, cocheras, accesos y porches. Cabe destacar la chimenea exterior de piedra o el vestíbulo de madera que rompen con la limpieza del conjunto.
Una vez en el interior, todas las estancias miran al sur en un esquema de peine, sobresaliendo la escalera bañada por la luz que desprende un gran lucernario.
Mirando al exterior, la urbanización juega con grandes rocas de la zona, que se usan a modo de contención de tierras y que a su vez integran la vivienda en el paisaje, quedando la semisoterrada. La piscina es una pieza clave en el conjunto, que vincula aún más si cabe la casa y el jardín.







