Vastas extensiones de maizales salpicadas de débiles arboledas que doblan ante el viento marino. Esta llanura que culmina vertiginosos acantilados constituye el escenario en el que se desarrolla el proyecto.
La propuesta surge como una respuesta directa hacia el sol, organizándose las estancias de la vivienda como si de un girasol se tratase. Se plantean 3 volúmenes inmaculados con cubierta a dos aguas y revestimiento de pizarra, respetando la composición estética más tradicional del entorno. Estas piezas albergan la zona de día, la de noche y la cochera respectivamente y se articulan gracias a unos cuerpos más bajos a modo de nexos. Estos cuerpos bajos se revisten en madera, contrastando con el resto del conjunto, y se abren con grandes ventanales hacia el paisaje de su alrededor.
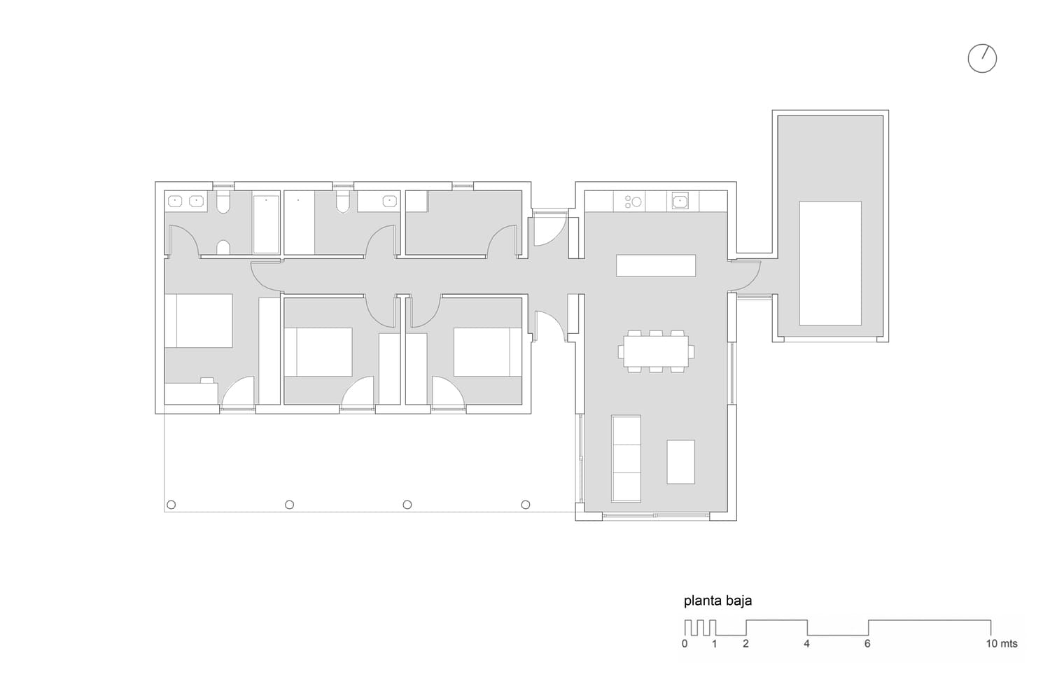
Interiormente, el edificio se resuelve en un esquema de espina de pez, donde los cuartos de servicios miran al norte y los espacios nobles o servidos se .ligan a la trayectoria solar.
A nivel constructivo, la pieza que comprende la zona de día, se resuelve mediante una estructura mixta de cerchas de nogal y losas de cubierta de hormigón, evitando la colocación de pilares y logrando una gran limpieza y armonía visuales.





