Se recibe el encargo de hacer que una vivienda existente, de varias alturas con relativa poca conexión entre ellas y espacios interiores lúgubres y angostos, torne en un espacio abierto, ordenado y lleno de luz.
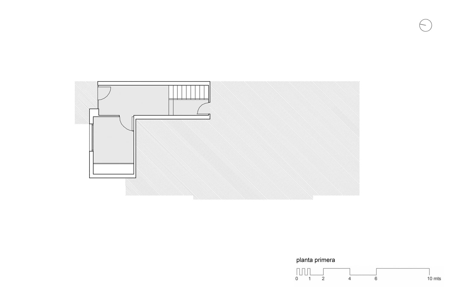
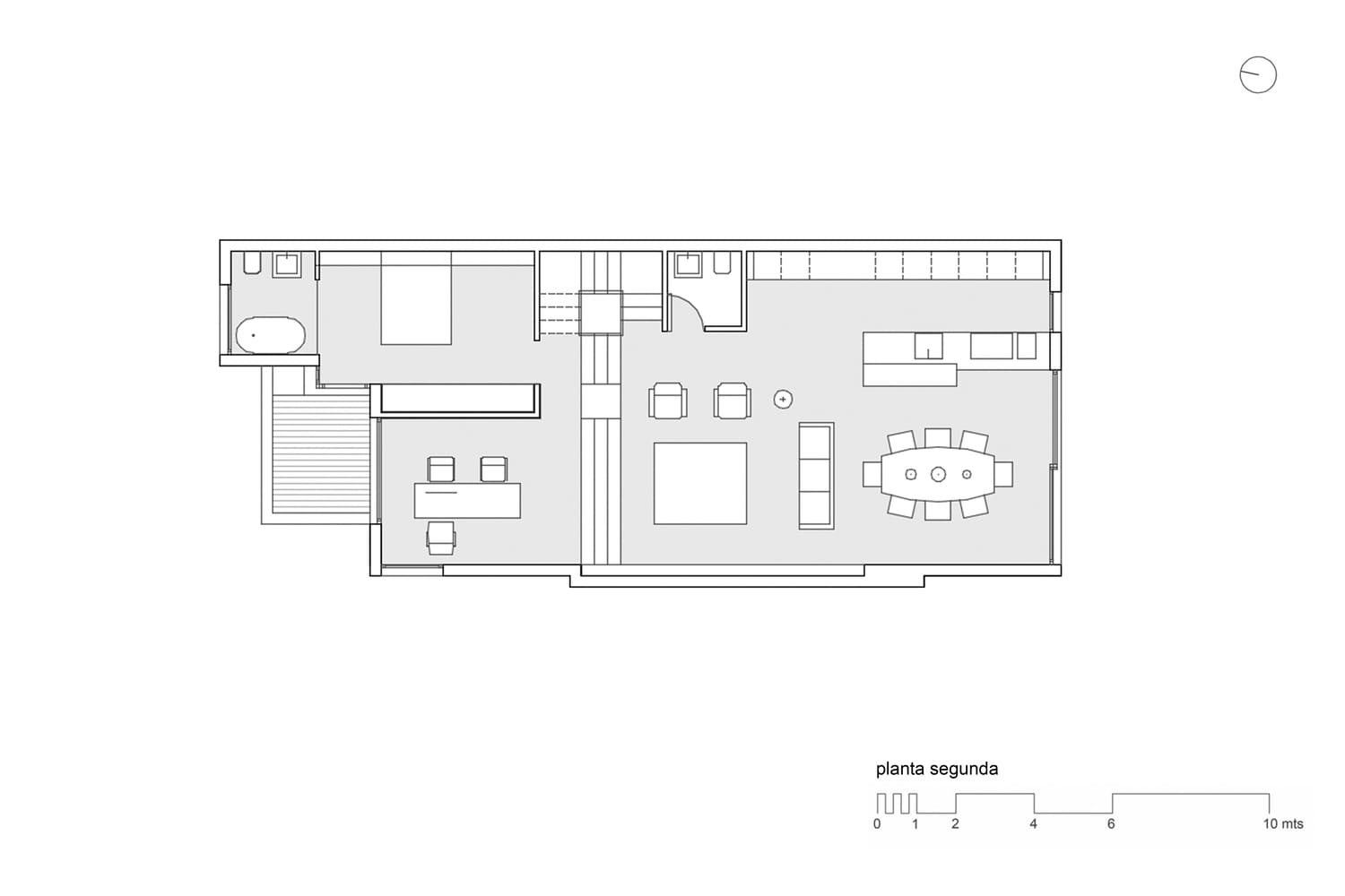
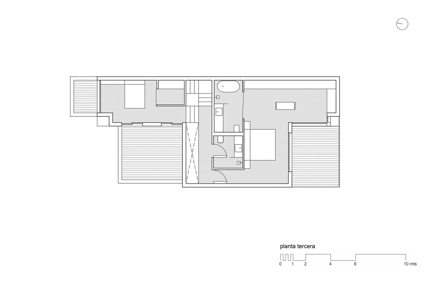
La vivienda existente forma parte de un gran complejo arquitectónico con 16 viviendas y zonas comunes. La intervención, se desarrolla en cinco plantas a media altura. Se toma la decisión de ampliar la vivienda y de abrir la estructura del forjado que comunicaba la planta de dormitorios con la zona de salón-estar, generando una doble altura iluminada por grandes lucernarios y un pasillo que comunica ambas partes de la vivienda. Se integra y amplía la zona de día, aumentando el volumen de la construcción generando terrazas exteriores.
A nivel de diseño de interiores, todos los detalles, hasta el más pequeño cuentan. Puertas a modo de tabiques móviles, grandes revestimientos integrados y un mimo plausible destacan y asombran. Se diseña todo el mobiliario y se lleva a cabo de forma artesanal. La luz, los acabados y los materiales son los protagonistas de esta obra.








