El proyecto se enclava en un oasis urbano; en una parcela muy próxima al núcleo de la ciudad, inspirándose en las casas californianas de los años 50.
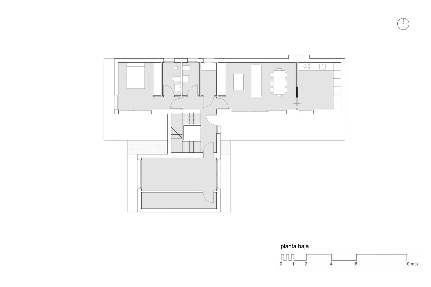
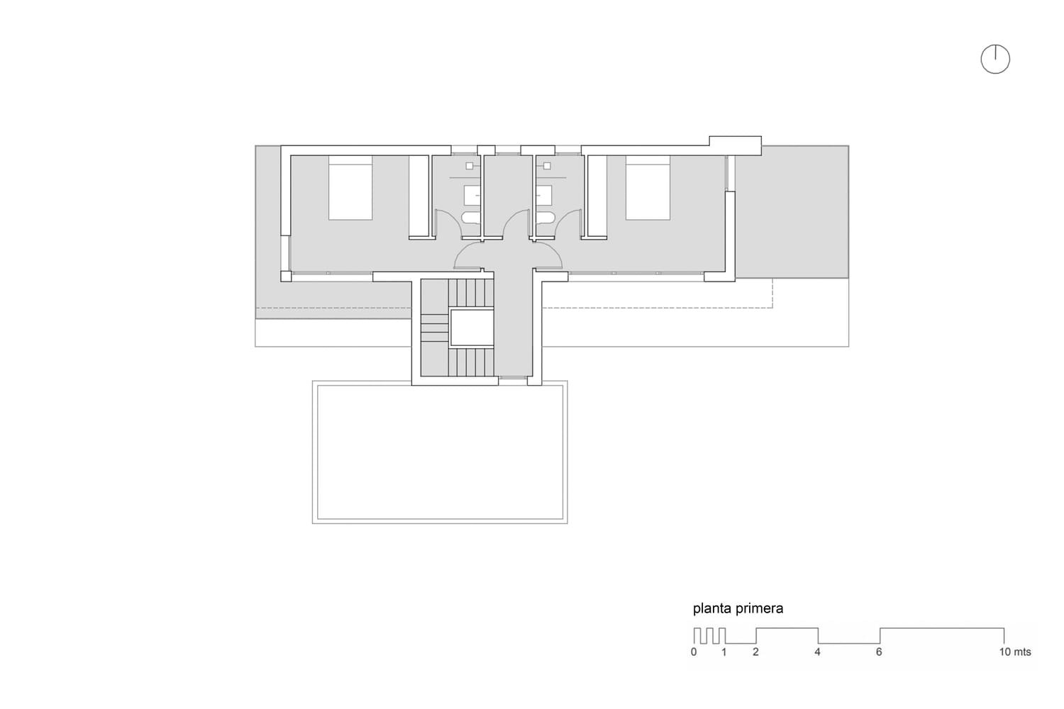
Volumétricamente se encuentra dividido en tres cuerpos. Un cuerpo de dos alturas que mira hacia el sur y se destina a vivienda y un núcleo de comunicación vertical con escaleras y ascensor que comunica este cuerpo con uno de menor altura donde se recoge una estancia común.
Interiormente, el programa para la pareja se resuelve en planta baja y el programa para sus hijos, ya mayores, en el piso superior.
Mirando al exterior, terrazas, porches y zaguanes encaran distintos puntos de la ciudad generando espacios privativos para cada uno de los miembros de la familia. Se dispone igualmente de una terraza común sobre el cuerpo más bajo.








