Estudio en La Plazuela San Miguel

Año de construcción

2017

Superficie construida

85 m²

Un edificio de principios de siglo. Una plaza emblemática, reconocible estandarte de la ciudad. Este es el punto de partida.

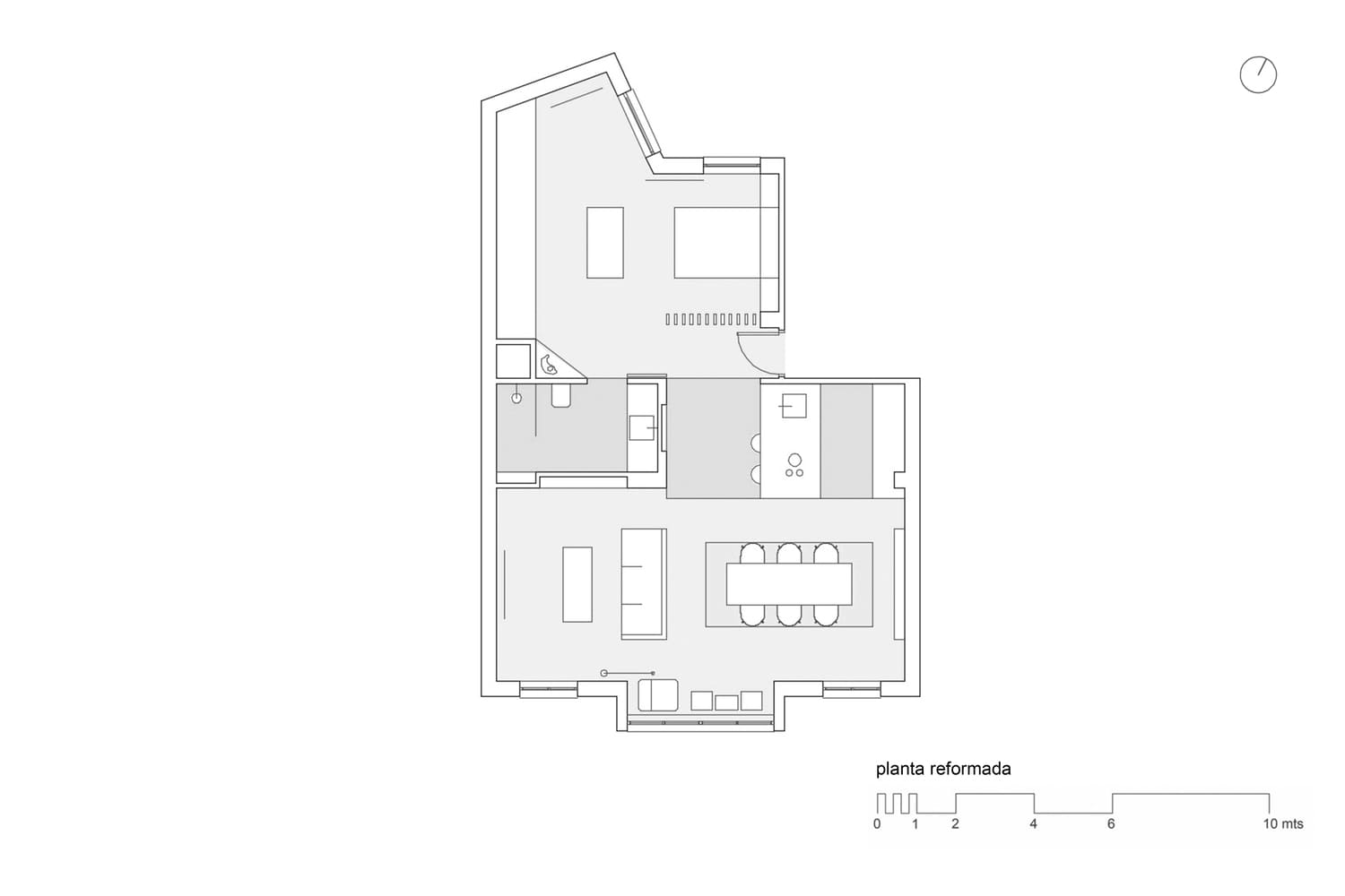
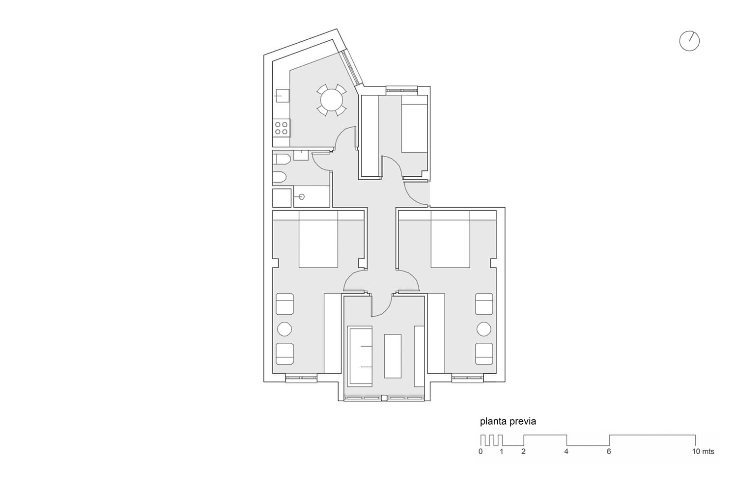
Se produce una transformación total del espacio desde la siguiente premisa: la zona de día dará al exterior y la zona de noche al patio de manzana. En cuanto a los cuartos húmedos o servidores, se localizan en el eje central de la vivienda, coincidiendo con la entrada a la misma. Destaca el juego compositivo de volúmenes y alturas, realzando la gran altura de los techos interiores así como la calidad de los espacios. Los materiales y las calidades son cuidadosamente elegidos para dotar de armonía al conjunto.